
客戶家鄰近吳興街傳統市場、世貿大樓、華納威秀影城、新光三越百貨及台北101,這些週末假日才有機會走走的聚會場所,是她們日常生活的一部分;好羨慕。尤其是台北101高聳入雲的身影,彷彿是掛在窗戶上的一幅畫,一幅老奶奶進大觀園、令人讚嘆的畫作~
人們喜歡、習慣了這樣優雅便利的生活機能,相對也會喜歡和習慣現代典雅的歐式廚房。因為它是現代化生活的一小部分,在繁華繁忙的城市裡;為您提供簡潔便利的料理環境與方式~
圖:Travelking (在客戶家也能這麼近仰望101喲)
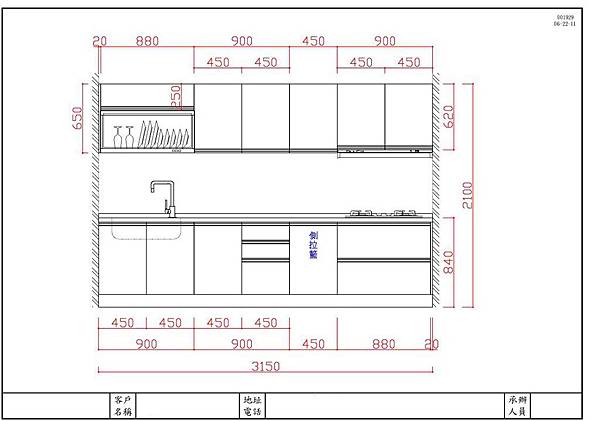
廚具設計初圖 01
廚具設計初圖 02
廚具完工圖 01
三星石AG-620灰色 、結晶鋼烤MJ-G901白色、上崁鋁手把、F1級木芯板桶身
廚具完工圖 02
KL-168 大愛琴海灣槽76cm內徑、多功能不鏽鋼掛籃、崁入式設計~
廚具完工圖 03
不鏽鋼半邊籃、不鏽鋼防蟑防臭大提籠設計~
廚具完工圖 04
喜特麗 JT-3790Q 臭氧殺菌烘碗機 90cm
廚具完工圖 05
喜特麗 JT-2009A 玻璃檯面爐 黑色
廚具完工圖 06
喜特麗 JT-139A 超薄隱藏式電熱除油煙機 90cm
廚具完工圖 07
瓦斯爐下門開式大拉籃組 (碗盤籃架)
廚具完工圖 08
刀具砧板、瓶罐收納側拉籃組~
廚具完工圖 09
廚具完工圖 10
喜特麗 JT-5216 強制排氣16公升數位恆溫熱水器
廚具完工圖 11
彩晶面板面板溫度控制與訊息代碼顯示
廚具完工圖 12
大功告成~賦歸~![]()
好片分享~ 2011年台北101煙火秀 ~
來源:Hiraiken2010














沒有留言:
張貼留言