
結婚,是成立一個新家庭還是嫁入一個既有的家庭?沒有正確答案,但是婚姻改變了所有人角色關係的事實,讓既有的家庭必然有新的面貌。如同是老廚房裡來了一個新面孔,又或是新廚房裡來了一個老常談,彼此之間都需要時間熟悉適應和付諸改變。
本次客戶原為二三樓共用一廚房的型式,先生對另一半的疼愛與家人對新人們的體貼;一起將空間重新規劃為一層一廚房。挑選了傳統的不鏽鋼廚具;再加了點歐化廚具的新穎變化,讓料理對胃,讓廚房也對味~
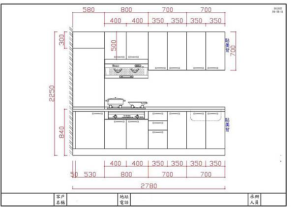
廚房設計初圖 01
廚房設計初圖 02
廚房施工圖 01
壁式水龍頭變更為檯面式水龍頭~ 水電承做範圍
廚房施工圖 02
天然氣瓦斯管和排水管~ 水電承做範圍
廚房施工圖 03
萬事具備~準備開工~
廚具完工圖 01
不鏽鋼檯面304、不鏽鋼桶身304、水晶門(黑色/銀白色)、鋅合金手把、美背~
廚具完工圖 02
KL-301水槽 56內徑、NS-207F-1檯面式水龍頭~
廚具完工圖 03
水槽右側鄰近冰箱,可增設背牆加強檯面擋水功能。
廚具完工圖 04
防止排水孔異味或蟑螂侵入的方式有很多,最簡易的就是將排水軟管做U字型固定,清潔時卸下膠帶並拉直排水軟管,溫熱水沖洗清潔軟管內部後;重新固定為U字型即可。
廚具完工圖 05
便利掛桿/掛勾、調味料架、雙排紅酒杯架~
廚具完工圖 06
櫻花 G6510 內焰式崁入爐 不鏽鋼面板~
廚具完工圖 07
櫻花 R3260SL 斜背式雙效除油煙機
專利油網搭配時下流行的電熱除油功能,效果加倍~
廚具完工圖 08
瓦斯爐前牆面增貼「不鏽鋼面板」,便利清潔整理~
廚具完工圖 09
樑柱深度和排油煙管;兩者讓左側上櫥櫃空間變小變窄。考量實用性不高,規劃以成本實惠的空櫃隱藏排油煙管,其他留白處未來可增設層板架運用之~
廚具完工圖 10
打開空櫃門板即可更換排油煙管~
廚具完工圖 11
原有的衣櫃門板已老舊,趁此次機會一倂換新~
廚具完工圖 12
鋼琴上的黑白鍵~簡單絕配~
好歌分享 ~ 獻給即將步入禮堂的你(妳) 幸福久久 永浴愛河
作詞:林夕 作曲:李偲菘
曾聽說過 尋覓愛情
就像天與地別離和團聚過程
而我跟妳 平靜旅程
並沒有驚心也沒有動魄的情景
只需要 當天邊海角競賽追逐時
可跟妳 安躺於家裡便覺最寫意
只需要 最迴腸盪氣之時
可用妳的名字 和我姓氏
成就這故事
※從此以後 無憂無求
故事平淡但當中有妳
已經足夠
(快樂童話像妳我一對已經足夠)※
如果要說 何謂愛情
定是跟妳動盪時閒話著世情
和妳走過 無盡旅程
就是到天昏髮白亦愛得年輕
不相信 當天荒不再地老不合時
竟跟妳 多相擁一次便愛多一次
怎相信 最迴腸盪氣之時
可用妳的名字 和我姓氏
成就這故事
REPEAT※
















沒有留言:
張貼留言