鄉村風格的居家環境,漸漸成為室內設計及裝修的主流,而擁有一個鄉村風的廚房,更是許多人期望實現的夢想之一,尤其是搭配中島或吧台的開放式廚房,讓廚房成為全家人互動的好所在。
一起來看看客戶規劃的鄉村風廚房吧~

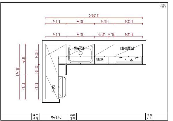
廚房設計初圖 01
廚房設計初圖 02
廚具完工圖 01
三星石PS820+喬豐G型038門板+日本鄉村風玫瑰花陶瓷手把 M型 820 白色 ~

櫻花 Q7560SL 臭氧殺菌烘碗機

櫻花 R3500A 隱藏式排油煙機
林內 RB-26GN 內焰式 玻璃檯面爐
廚具完工圖 02
一字型廚房空間規劃成為L型廚房,主要考量左側短牆僅有158公分,在擺放65公分的冰箱之後,廚具左側距離冰箱空間所剩無幾。故規劃為L型廚房並且善用此空間,隱藏收納垃圾桶、瞬間熱飲機。

廚具完工圖 03
半開放式廚房,利用拉門設計分隔廚房與餐廳空間,除了讓廚房空間延伸、採光明亮之外,更增加了廚房與餐廳、客廳的互動性~
廚具完工圖 04
喬豐G型038門板、日本鄉村風玫瑰花陶瓷手把 M型 820 白色
平行上掀器/拉板/通氣孔、緩衝鉸鏈、美背設計
廚具完工圖 05
平行上掀器側面圖~ (完全開啟)
廚具完工圖 06
平行上掀器側面圖~ (半開啟)
廚具完工圖 07
落地電器櫃櫃內空間圖~
廚具完工圖 08
落地電器櫃內設計通氣孔~
廚具完工圖 09
落地電器櫃全景側面圖~
廚具完工圖 10
將垃圾桶與廚具結合,兼具美觀和實用性~

廚具完工圖 11
轉角櫥櫃使用180度背鉤式轉盤組,方便取用和收納物品~
廚具完工圖 12
轉角櫥櫃內設置 - CH-50瞬間熱飲機、AP-DWS/1000淨水器(可生飲)
兩項設備串接使用,即可替代飲水機、熱水瓶等電器用品,飲用水隨開即用~
廚具完工圖 13
KL-101愛琴海大單槽 - 珍珠啞光、防蟑防臭大提籠設計
廚具完工圖 14
NS-3081伸縮檯面龍頭 (原貌)
廚具完工圖 15
NS-3081伸縮檯面龍頭 (使用中)
廚具完工圖 16
瞬間熱飲機專用-雙溫龍頭 CUCH-22S
廚具完工圖 17
小巧便利的給皂器~
廚具完工圖 18
兩小一大抽屜組 - 刀叉收納盤+緩衝軌道
廚具完工圖 19
瓶罐收納側拉籃組 - 緩衝軌道
廚具完工圖 20
瓦斯爐下抽屜式大拉籃組-緩衝軌道
廚具完工圖 21
抽屜式大拉籃組可搭配「碗盤架」,部分碗盤改以直立式收納,方便取用~
廚具完成圖 22
餐廳裡的餐櫃,採用與廚房相同款式的門板~
值得推薦的網路達人相關圖文~~
> 坐擁南港三鐵共構特區 - 力麒村上搖滾電梯大廈開房紀錄! | 宅搜網 - HouSet
http://www.donjing.com/house/?p=146
> 全能住宅改造王--力麒村上黃公館 @ 權釋室內居家設計/人文經典 精湛工藝
http://allness.pixnet.net/blog/post/23507402






















沒有留言:
張貼留言