
人生的旅途中,最困難的決定莫過於「堅持追逐夢想」。
但現實生活中;面臨著許多的義務和責任?可能讓我們放慢追逐夢想的腳步~
忘記追逐夢想的初衷和感動...
廣告不機車很推車 ~ (第一次看廣告時還挺反感的呢..)
但是人生不就是從別人的故事裡,尋找到感動… by 王偉忠
既然面對現實,我們的確需要多用點心思精力在維持生活。但在塵囂忙碌之後;仍然有些人會嘗試著用僅剩的精力和腦容量,翻找曾經青春的感動,試圖完成那曾經有過的夢想~
就如年紀相仿的客戶;離鄉背井到新加坡為音樂打拼,為圓夢而努力奉獻,期望他在音樂的旅途上發展順遂的同時,也期望每次回台灣時,也能在新屋廚房裡;放鬆享用甜蜜佳人的幸福料理~
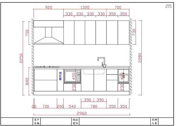
廚具設計初圖 - 尺寸圖
廚具設計初圖 - 立體圖
廚具設計初圖 - 彩色圖
廚具完工圖 01
三星人造石 SG420 + 結晶鋼烤門板 MJ-G901+ 無手把斜邊設計 + 木芯板桶身
廚具完工圖 02
兩小一大木抽屜組 + 刀叉盤
電器空間規劃在下櫥櫃,上下配置為「拉板」+「抽屜」
廚具完工圖 03
規劃下櫥櫃為電器空間使用時,應考慮電器的尺寸和必要性。
如預留電器空間 54cm:微波爐
廚具完工圖 04
瓦斯爐下方抽屜式大拉籃 60cm
瓶罐收納側拉籃組 30cm
廚具完工圖 05
櫻花 G2720 雙內焰玻璃檯面爐,熱效率高達48%
廚具完工圖 06
櫻花 R3760SXL 進口煙囪式造型 排油煙機
廚具完工圖 07
KL-101 愛琴海造型水槽 防蟑防臭大提籠設計
NS-207F 鵝型檯面式水龍頭
隨想~
說到感動,最近又看到網友精心創作「灌籃高手大結局」。真的是會讓人飆淚的青春回憶~
影片原作者:http://www.wretch.cc/video/v90524&func=single&vid=6324698
... 到美國來個NBA籃球朝聖之旅,我想 我會 我一定要
...










沒有留言:
張貼留言